+
Info -
Info
Info -
Info
edificio público
Inca / Mallorca
Año: 2024
Proyecto:
concurso - 1º premio
Cliente:
ICAIB
Arquitectos:
en colaboración con AR3 arquitectes
Arquitecto:
Maria Diaz, Luz Guasp, Xisca Lliteras
Equipo Proyecto:
Iosune Martin
Izabel Todorova
Carlos Tugores
Melissa Marte
Marcelina Piskozub
Sede del ICAIB en Inca
La sede del ICAIB es una intervención arquitectónica contemporánea, integrada de manera fluida en el tejido urbano de Inca. En su núcleo, el edificio gira en torno a un patio central de entrada: un espacio abierto y acogedor que actúa como el corazón del diseño. Este patio, con su luz natural y circulación de aire, ofrece una conexión dinámica entre el interior y el exterior, mientras proporciona un ambiente tranquilo y protegido para quienes lo atraviesan. El patio se convierte no solo en un elemento visual central, sino también en un espacio funcional que se adapta a las necesidades de los usuarios, fomentando la interacción y el intercambio en un entorno que es a la vez privado y abierto.
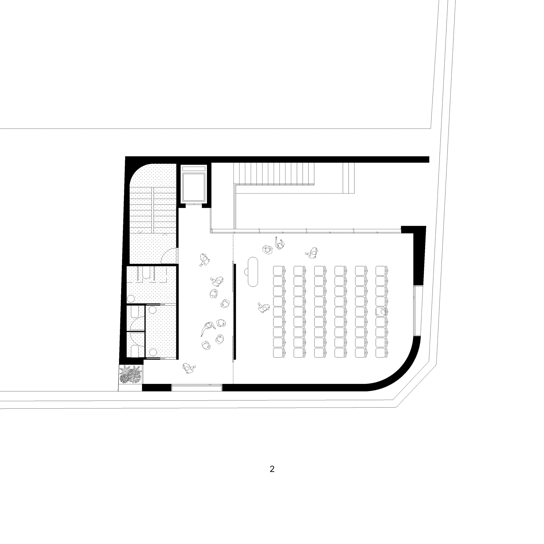
La planta está diseñada para ser flexible. Los espacios se organizan de manera que permiten diversas configuraciones, respondiendo a los requisitos cambiantes del ICAIB. La disposición abierta y fluida fomenta la colaboración, mientras que las entradas independientes y las particiones móviles permiten que los espacios se transformen según las necesidades evolutivas de la institución. Este enfoque garantiza que el edificio se mantenga funcional, respondiendo tanto a las necesidades personales como colectivas de sus ocupantes.
Los materiales circundantes, como la piedra de marés, la madera y el mortero de cal, establecen una conexión con la herencia arquitectónica local, al mismo tiempo que contribuyen a la presencia atemporal y sólida del edificio. El uso de estos materiales, combinado con una disposición pensada que prioriza espacios a escala humana, refuerza el sentido de lugar y continuidad, convirtiendo la sede del ICAIB en una adición moderna pero profundamente arraigada al paisaje arquitectónico de Inca.
La planta está diseñada para ser flexible. Los espacios se organizan de manera que permiten diversas configuraciones, respondiendo a los requisitos cambiantes del ICAIB. La disposición abierta y fluida fomenta la colaboración, mientras que las entradas independientes y las particiones móviles permiten que los espacios se transformen según las necesidades evolutivas de la institución. Este enfoque garantiza que el edificio se mantenga funcional, respondiendo tanto a las necesidades personales como colectivas de sus ocupantes.
Los materiales circundantes, como la piedra de marés, la madera y el mortero de cal, establecen una conexión con la herencia arquitectónica local, al mismo tiempo que contribuyen a la presencia atemporal y sólida del edificio. El uso de estos materiales, combinado con una disposición pensada que prioriza espacios a escala humana, refuerza el sentido de lugar y continuidad, convirtiendo la sede del ICAIB en una adición moderna pero profundamente arraigada al paisaje arquitectónico de Inca.