+
Info -
Info
Info -
Info
edificio público
Terrassa / Barcelona
Año: 2023
Proyecto:
hotel
Cliente:
Hotel Terrassa Confort
Superfície construida:
7.855,05 m2
Arquitecto:
Maria Díaz
Equipo Proyecto:
Iosune Martin
Amalia Tunaru
Armands Blums
Jagoda Augustyniak
Fotografía:
Hotel Terrassa Confort
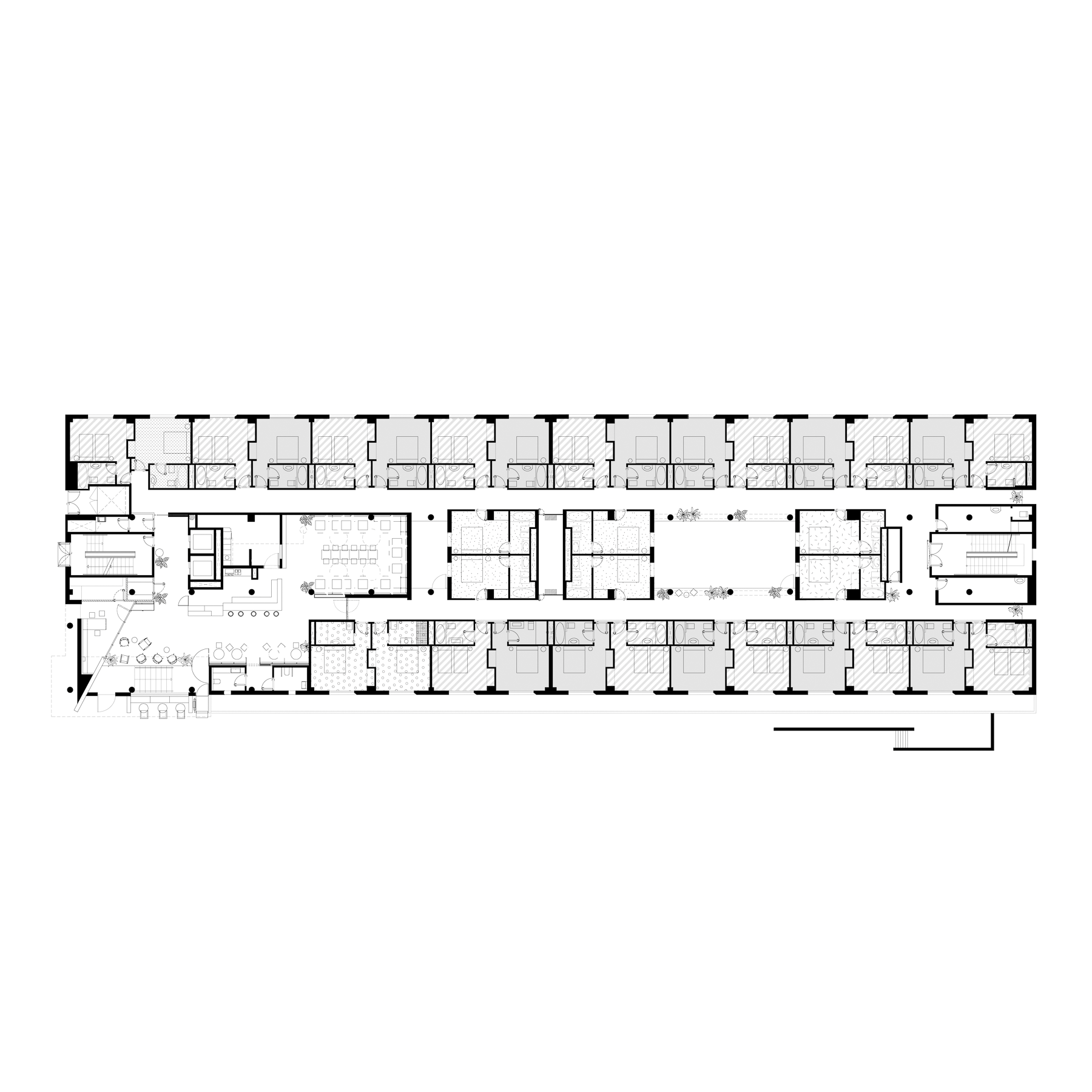
Un hotel situado en una zona industrial del sur de Terrassa, sin especial singularidad en su entorno. La intervención se ha centrado exclusivamente en el interior: un gesto amplio en la entrada-recepción y uno más íntimo en las 74 habitaciones.
En el acceso buscamos reducir el ritmo, invitar al huésped a entrar en un ambiente pausado, creado a través de la luz y de una selección cálida de materiales. Comodidad, amplitud y calidez guían el diseño. La recepción y el bar-comedor comparten un único espacio continuo, unificado por el micromortero en suelo y la nogalina en las paredes, que envuelven las áreas de estancia. La luz cálida, desde el techo y las luminarias colgantes, se multiplica en el espejo del fondo, amplificando la sensación de calma.
Más allá de la recepción, los pasillos mantienen este ritmo lento mediante tonos oscuros en suelo y techo.
En las habitaciones, un papel mural neutro envuelve el espacio y aporta calidez. Un mueble a medida organiza todos los elementos - cortinas, iluminación, maletero, ventana, banco y escritorio - creando un ambiente ordenado y coherente, sin elementos dispersos.
Intervenir parcialmente en un hotel existente ha sido un ejercicio enriquecedor: actuar casi sólo con el color y ver cómo transforma la percepción, revelando ese concepto de quietud que buscábamos desde el inicio.
En el acceso buscamos reducir el ritmo, invitar al huésped a entrar en un ambiente pausado, creado a través de la luz y de una selección cálida de materiales. Comodidad, amplitud y calidez guían el diseño. La recepción y el bar-comedor comparten un único espacio continuo, unificado por el micromortero en suelo y la nogalina en las paredes, que envuelven las áreas de estancia. La luz cálida, desde el techo y las luminarias colgantes, se multiplica en el espejo del fondo, amplificando la sensación de calma.
Más allá de la recepción, los pasillos mantienen este ritmo lento mediante tonos oscuros en suelo y techo.
En las habitaciones, un papel mural neutro envuelve el espacio y aporta calidez. Un mueble a medida organiza todos los elementos - cortinas, iluminación, maletero, ventana, banco y escritorio - creando un ambiente ordenado y coherente, sin elementos dispersos.
Intervenir parcialmente en un hotel existente ha sido un ejercicio enriquecedor: actuar casi sólo con el color y ver cómo transforma la percepción, revelando ese concepto de quietud que buscábamos desde el inicio.