+
Info -
Info
Info -
Info
viviendas
Manacor / Mallorca / España
Año: 2021 - 2025
Proyecto:
vivienda asistida
Cliente:
Aproscom Fundació
Superfície terreno:
1.386 m2
Arquitectos:
colaboración con AR3 Arquitectes
Equipo Proyecto:
Iosune Martin
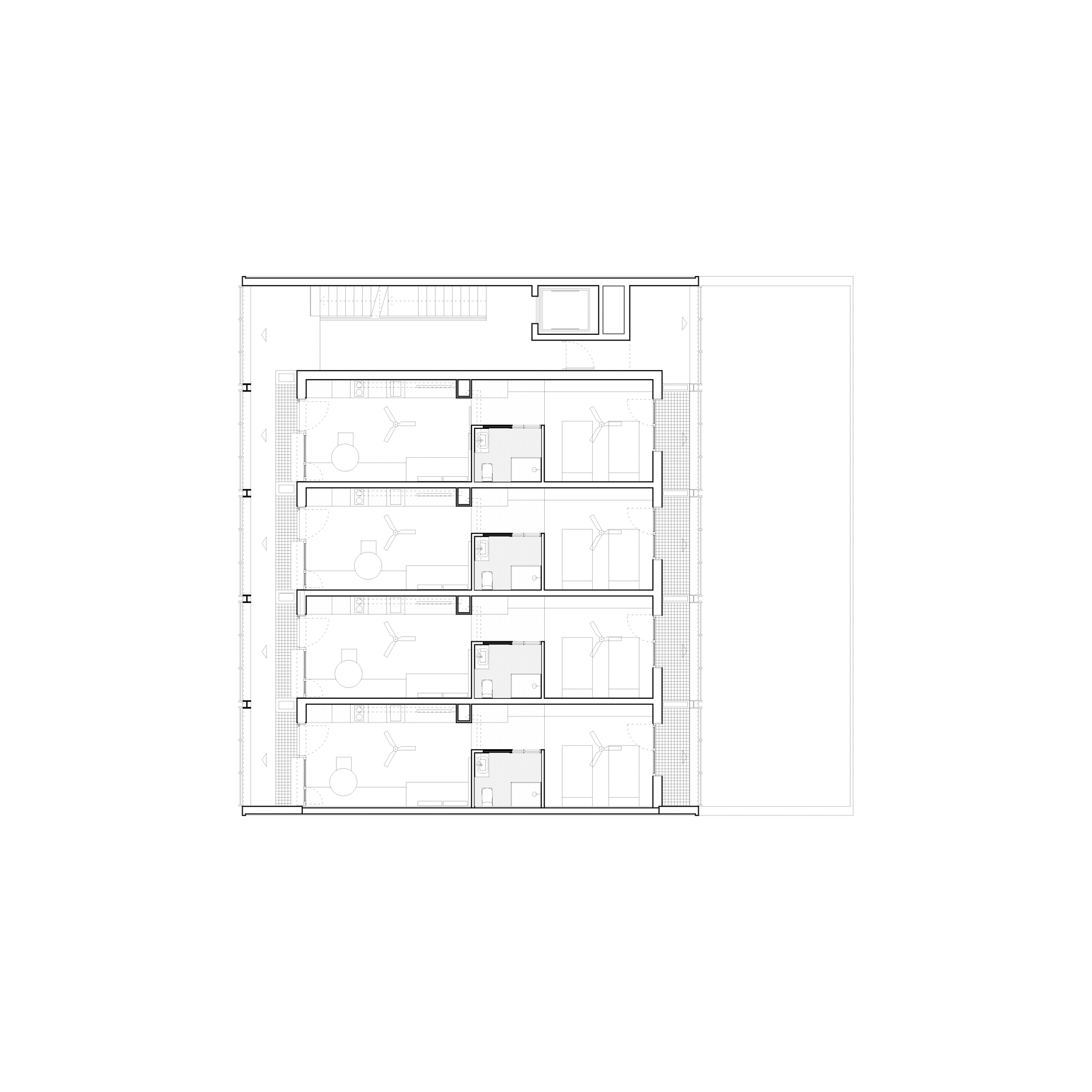
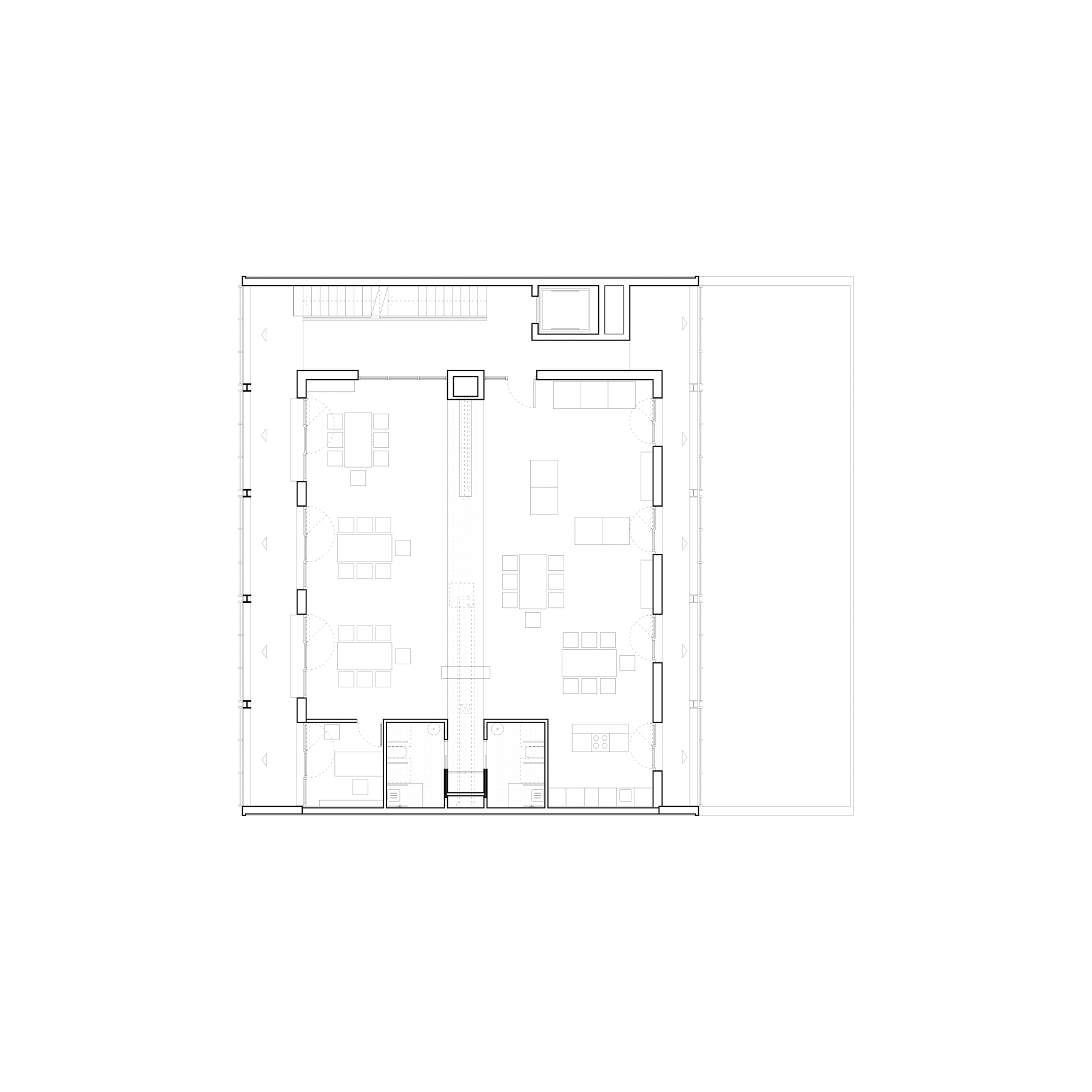
Edificio viviendas Aproscom Fundació
Las viviendas y espacios ocupacionales de Manacor se conciben como un entorno inclusivo, donde el alojamiento, la formación y las actividades diarias se entrelazan para jóvenes con algún grado de discapacidad.
El edificio acoge ocho viviendas tuteladas y un centro ocupacional en un mismo lugar, promoviendo la autonomía, la convivencia y el desarrollo personal de sus usuarios, fomentando un entorno cálido, cercano y funcional.
El edificio acoge ocho viviendas tuteladas y un centro ocupacional en un mismo lugar, promoviendo la autonomía, la convivencia y el desarrollo personal de sus usuarios, fomentando un entorno cálido, cercano y funcional.