+
Info -
Info
Info -
Info
school
Mora la Nova / Tarragona
Year: 2024
Project:
competition
Lead Architect:
Maria Diaz
Project Team:
Iosune Martin
Melissa Marte
Agata Komecka
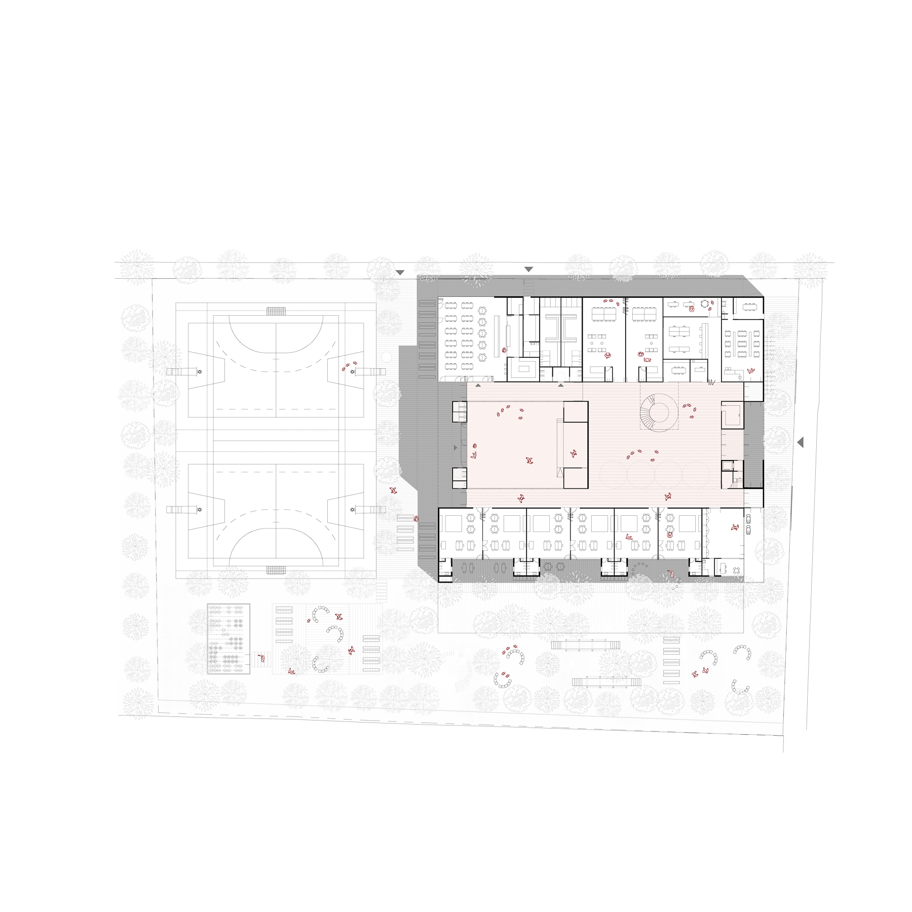
School of April 3rd in Mora La Nova
The school is organized around a central double-height space that houses a generous spiral staircase in the entrance atrium, oriented to the north to ensure soft and consistent natural light throughout the year.
On either side, two lower volumes accommodate the children’s area and the service and administration zones, forming a compact building that generates large, flexible spaces that can be easily subdivided.
The façade responds to the lighting needs of each area: the bioclimatic atrium brings full-height daylight into the central space, the elevated plinth allows light to reach deep into the heart of the building, and the rooms facing the exterior receive overhead light that ensures comfort and privacy.
The project thus dissolves the boundary between interior and exterior, incorporating porches, outdoor classrooms, and play areas as an integral part of the educational experience.
On either side, two lower volumes accommodate the children’s area and the service and administration zones, forming a compact building that generates large, flexible spaces that can be easily subdivided.
The façade responds to the lighting needs of each area: the bioclimatic atrium brings full-height daylight into the central space, the elevated plinth allows light to reach deep into the heart of the building, and the rooms facing the exterior receive overhead light that ensures comfort and privacy.
The project thus dissolves the boundary between interior and exterior, incorporating porches, outdoor classrooms, and play areas as an integral part of the educational experience.